PLAY!
June 2016–January 2017
“At the Autry Museum, the vintage toys of ‘Play!’ are serious fun.”
—LA Times
Featured in Designing for Kids: Creating for Playing, Learning, and Growing, by Krystina Castella
““We wanted to create a playful, multigenerational experience of historic toys against whimsically designed environments to reveal the many ways children play, past and present,” curator Carolyn Brucken said.”
—LA Times
BRIEF:
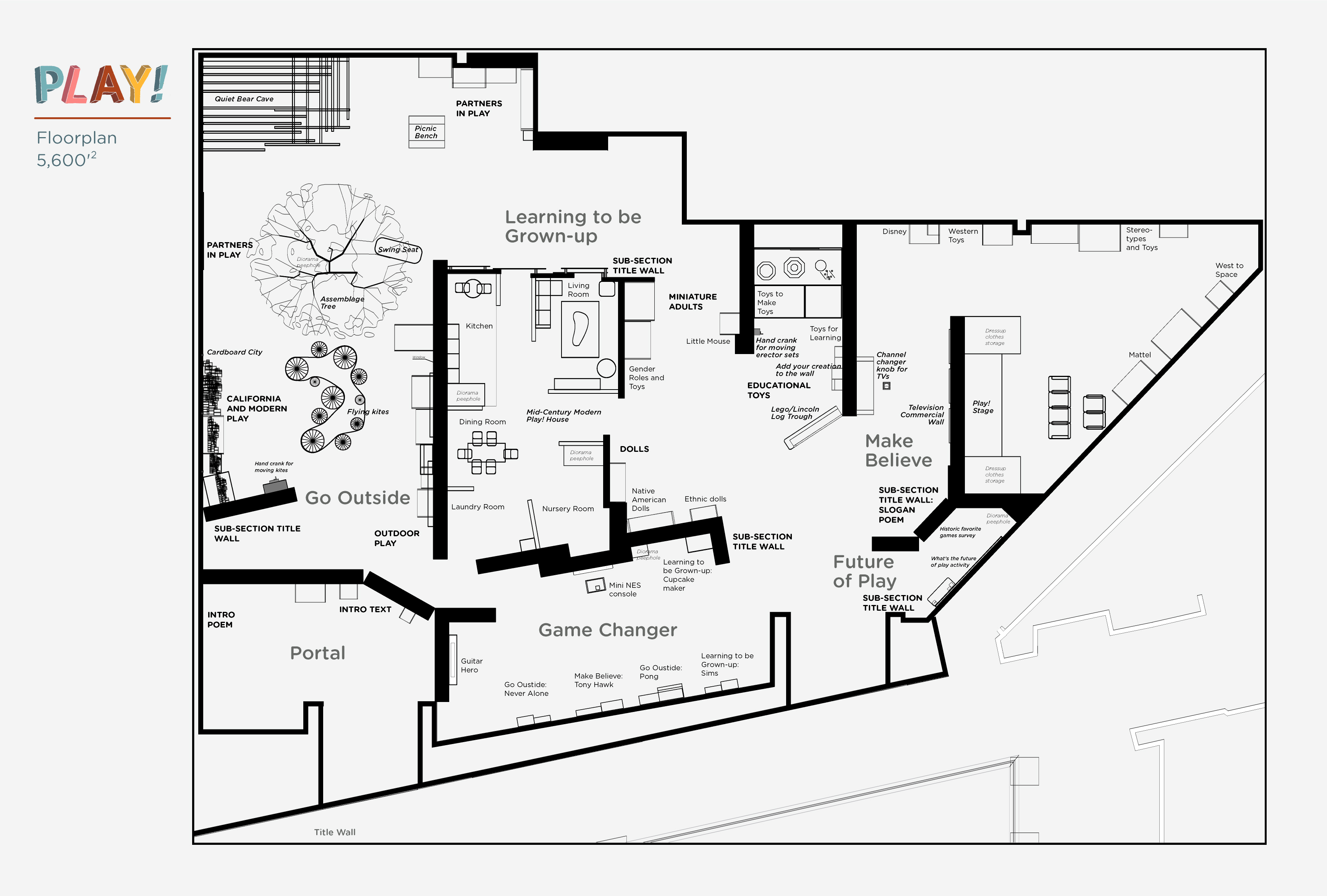
Create an exhibition in a 5,600'2 space based on the premise the play matters because it is universal and creates a common experience across cultures, time and place.
SOLUTION:
Design spaces, and displays in an entertaining, and informative manor. Favor experience and haptic learning over didactic explanation. Create fellowship and dialogue amongst visitors. Present objects that span a diverse time frame, that also express or represent different cultures. Place the objects in environments that inform how they are interpreted. Give visitors voice. Provide comfortable places to sit and play. Provide multi-generational opportunities for amusement, and encourage visitors varied abilities to play in the gallery.
ROLE:
Creative director, Art director, Lead designer, Content development, Illustrator
TEAM:
Installation Collaborators .......... Mac Maker, Cryptic Industries, Brett Hatcher
Curation .......... Carolyn Brucken, Sarah Wilson
Designers ........ Alan Konishi, Gene Wyrick, Erika Martin–Honles
Illustrators ...... Erika Martin-Honles
Studio ............. Autry Museum




















Promotion



Process
